| Design | Informacje |
|---|---|
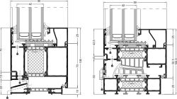
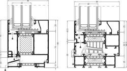
| ALIPLASTStarSystem okienno- drzwiowy o podwyższonej izolacyjności termicznej.- system trójkomorowy - współczynnik izolacyjności termicznej: Uf w przedziale od 0,6-1,23 W/m2K. - przekładka termiczna o szerokości 45 mm wykonana z innowacyjnych materiałów - głębokość konstrukcyjna kształtowników: 90 mm - ościeżnica i 99 mm - skrzydło - możliwość okuwania drzwi systemem zawiasów rolkowych o bardzo dużej nośności - nowy standard zachodzenia profila z szybą (zwiększona głębokość znacząco polepsza właściwości termiczne i konstrukcyjne systemu) - innowacyjny system odprowadzenia wody z konstrukcji (brak widocznych elementów zaślepiających otwory odwodnieniowe) - ten sam typ narożnika i łącznika typu T w komorze zewnętrznej i wewnętrznej (rezultat: redukcja ilości akcesoriów i szybsza fabrykacja) - ten sam rodzaj wkładu izolacyjnego w skrzydle okiennym oraz w ramie okiennej - zmniejszona ilość listew szklących oraz uszczelek przy zachowaniu ciągłości szklenia w zależności od grubości pakietów - nowy typ narożnika, unikający kolizji wkręt/narożnik podczas przykręcania nawierzchniowych elementów okuć pod rowek PVC - możliwość szklenia od zewnątrz - rozwiązania zastosowane w systemie STAR umożliwią projektowanie konstrukcji posiadających cechy innych systemów Aliplast: renowacyjnego Luxusa, imitującego stal Steel Look czy systemu Vision (ukryte skrzydło) z zachowaniem właściwości systemu STAR - nowoczesny design |
|
|







