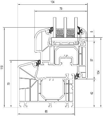
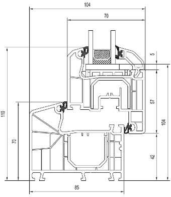
Systemy okienne aluplast to nowa generacja profili, które już dzisiaj spełniają wymagania stawiane oknom w przyszłości. Łączą w sobie najnowocześniejszą technikę z najwyższym komfortem mieszkania. Oryginalne i harmonijne wzornictwo, w połączeniu z dużym bogactwem rozwiązań systemowych, dają nieograniczone możliwości kreowania okien i podkreślenia przez to własnego stylu. Bogaty wybór różnego rodzaju listew przyszybowych stwarza dodatkowe możliwości stylizacji okien i dopasowanie do charakteru wnętrza.










