| Design | Informacje |
|---|---|
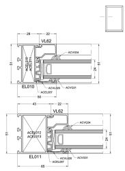
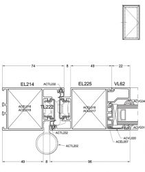
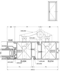
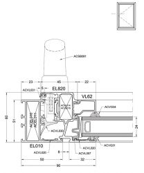
| ALIPLASTEconolineCHARAKTERYSTYKA SYSTEMU:System ECONOLINE to system bez izolacji termicznej, przeznaczony do konstruowania wewnętrznych przegród, zarówno stałych jak i tych z oknami i drzwiami. Szerokość profili 51 mm (o 6 mm więcej niż standard rozpowszechniony na rynku) daje dużą swobodę dla projektantów i komfort dla wykonawców. System pozwala na stosowanie zestawów szybowych grubości od 3 mm do 38 mm. Szyby są mocowane i uszczelniane we wrębach skrzydeł przy użyciu listew przyszybowych z kształtowników aluminiowych oraz uszczelek. System Econoline jest kompatybilny z innymi systemami Aliplast: wspólne listwy szklące, uszczelki, narożniki i okucia. W systemie Econoline istnieje wersja profili drzwiowych ze specjalnie wyprofilowanym eurorowkiem okuciowym służącym do mocowania zaciskowych zawiasów wrębowych. Pewnego rodzaju uzupełnieniem jest podsystem INNERWALL, który świetnie nadaje się do kształtowania zabudowy biurowej – jest to surowy szkielet, do którego wstrzeliwane są lakierowane listwy. Istnieje tu możliwość stosowania wewnętrznych żaluzji. ZASTOSOWANIE: - drzwi oraz segmenty ścian działowych przeznaczone do ogólnego stosowania w budynkach użyteczności publicznej i przemysłowych (w pomieszczeniach o charakterze biurowym) - istnieje możliwość wbudowania drzwi ECONOLINE w ściany działowe wykonane z segmentów ECONOLINE lub w inne ściany, o dowolnej konstrukcji, zgodnie z projektem technicznym obiektu - możliwość konstruowania drzwi przesuwnych, wahadłowych, łączenie ścian pod dowolnym kątem, oraz wzmacnianie już wykonanych a nawet zamontowanych elementów. |
|
|







