Oferta - Aluplast 7000

Systemy okienne aluplast to nowa generacja profili, które już dzisiaj spełniają wymagania stawiane oknom w przyszłości. Łączą w sobie najnowocześniejszą technikę z najwyższym komfortem mieszkania. Oryginalne i harmonijne wzornictwo, w połączeniu z dużym bogactwem rozwiązań systemowych, dają nieograniczone możliwości kreowania okien i podkreślenia przez to własnego stylu. Bogaty wybór różnego rodzaju listew przyszybowych stwarza dodatkowe możliwości stylizacji okien i dopasowanie do charakteru wnętrza.

Design Informacje

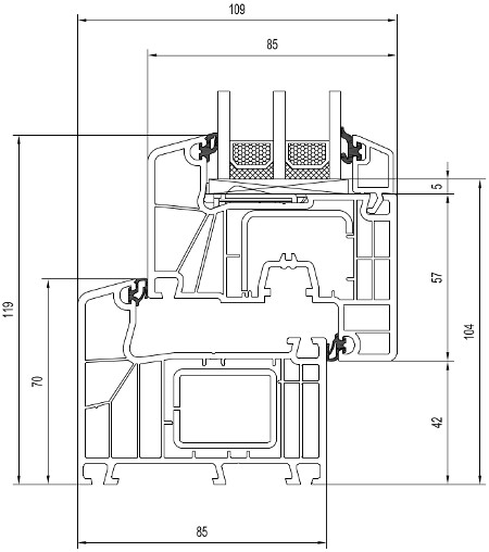
ALUPLAST Ideal 7000 new

Nowoczesna architektura wymaga nowych standardów. Zmieniające się wymagania prawne stawiane stolarce budowlanej w najbliższym czasie, jak również przede wszystkim oczekiwania klientów poszukujących coraz cieplejszych okien to tendencje wobec których nie można pozostawać obojętnym. Nowy system Ideal 7000 NEW 85 mm jest kolejną propozycją firmy aluplast dedykowaną dla budownictwa energooszczędnego. Głębokość zabudowy profili wynosząca 85 mm oraz sześciokomorowa budowa gwarantują ponadprzeciętne właściwości izolacyjności termicznej. Jest to nowa seria w ramach linii profili o głębokości zabudowy 85 mm. Zapewnia to pełną kompatybilność z wprowadzonym w ubiegłym roku systemem drzwi zewnętrznych 85 mm, jak również zaprezentowanym na początku tego roku nowym systemem drzwi unoszono-przesuwnych HST 85 mm. Różnica w stosunku do wyróżnionego Złotym Medalem 2013 MTP systemu Ideal 8000 polega jedynie na sposobie uszczelnienia, gdyż profile Ideal 7000 NEW to systemy z uszczelnieniem zewnętrznym. Dzięki takiej konstrukcji mamy między innymi możliwość zaoferowania energooszczędnego rozwiązania dla konstrukcji stałoszklonych, bez konieczności stosowania adapterów. Szeroki wybór różnego rodzaju listew przyszybowych oraz możliwość zastosowania w tym systemie pakietów szybowych o szerokości do 51 mm pozwala na tworzenie okien charakteryzujących się znakomitymi właściwościami w zakresie izolacyjności cieplnej.

Partnerzy