| Design | Informacje |
|---|---|
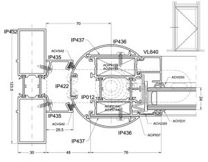
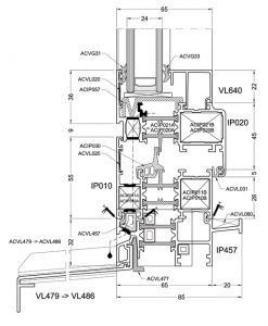
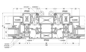
| ALIPLASTImperialCHARAKTERYSTYKA SYSTEMU:To trójkomorowy system przeznaczony do konstruowania zewnętrznych drzwi, okien oraz różnego rodzaju witryn. Zastosowana w profilach przekładka termiczna o szerokości aż 24 mm, wykonana z poliamidu wzbogaconego dodatkiem wielokierunkowo orientowanego włókna szklanego, znacznie poprawia wytrzymałość mechaniczną komory zewnętrznej i wewnętrznej profili. Przekładkę termiczną dodatkowo wyposażono w żyłkę uszczelniającą Coex, która w trakcie procesu wypalania polakierowanych proszkowo profili tworzy niezawodną paraizolację i doskonałe uszczelnienie. Profile drzwiowe IMPERIAL posiadają współczynnik przenikania ciepła UR=2,2÷2,3 W/m2K, co klasyfikuje je w grupie materiałowej 2.1 wg DIN 4108. Dzięki parametrom: dużej szerokości profili 65 mm (ościeżnice okienne, drzwiowe, słupki, skrzydła drzwiowe) i 74 mm (skrzydła okienne) oraz grubości ścianki 1.7÷2.0 mm, uzyskano sztywny, stateczny profil umożliwiający konstruowanie drzwi o maksymalnych gabarytach skrzydła: szerokość 1300 mm - przy maksymalnej wysokości 2200 mm, szerokość 1200 mm - przy maksymalnej wysokości 2400 mm. System mocowań wypełnień: od 4 do 51 mm (umożliwiający również szklenie od zewnątrz), stosowanie markowych okuć oraz szerokiej gamy rozwiązań progowych czyni system bardzo nowoczesnym i wszechstronnym. Zaletą okien IMPERIAL jest możliwość właściwego doboru skrzydła do gabarytów okna (kilka rodzajów ościeżnic okiennych oraz skrzydeł) oraz wybór skrzydła w zależności od okucia – istnieją skrzydła przeznaczone do okuć typowo aluminiowych, zgodne ze standardem EURO jak również do okuć okien PCV. ZASTOSOWANIE: - witryny szklone szybami zespolonymi i szkłem pojedynczym - okna rozwierno-uchylne, rozwierne, uchylne, uchylno-przesuwne - drzwi otwierane na zewnątrz, do wewnątrz, jedno i dwuskrzydłowe, z doświetlami - drzwi wahadłowe i przesuwne - okna obrotowe z pionową i poziomą osią obrotu |
|
|







