Oferta - Aluplast 5000

Systemy okienne aluplast to nowa generacja profili, które już dzisiaj spełniają wymagania stawiane oknom w przyszłości. Łączą w sobie najnowocześniejszą technikę z najwyższym komfortem mieszkania. Oryginalne i harmonijne wzornictwo, w połączeniu z dużym bogactwem rozwiązań systemowych, dają nieograniczone możliwości kreowania okien i podkreślenia przez to własnego stylu. Bogaty wybór różnego rodzaju listew przyszybowych stwarza dodatkowe możliwości stylizacji okien i dopasowanie do charakteru wnętrza.

Design Informacje

ALUPLAST Ideal 5000 roundline

Współczesna architektura wymaga nowych standardów. Perfekcyjna forma profili Ideal 5000 spełnia te wymagania - łączy w sobie najnowocześniejszą technikę z najwyższym komfortem mieszkania. Harmonijne kształty, mocna konstrukcja i atrakcyjne wzornictwo to gwarancja ponadczasowej elegancji. Duże komory na wzmocnienia stalowe gwarantują optymalne parametry statyczne i umożliwiają wykonanie okien o dużych gabarytach. Jest to seria profili z uszczelnieniem środkowym, gdzie dzięki występowaniu trzeciej uszczelki oraz użyciu odpowiednich szyb termoizolacyjnych możliwe jest uzyskanie lepszej izolacyjności termicznej i akustycznej okien. Dzięki występowaniu trzeciej uszczelki wydzielona została tzw. sucha komora, w której pracują okucia, co wpływa na ich trwałość. Dodatkowe detale i akcesoria pozwalają na podkreślenie własnego stylu oraz dają nieograniczoną liczbę możliwości kreowania Państwa okien. W profilach serii Ideal 5000 istnieje możliwość zastosowania wzmocnień o podwyższonej izolacyjności termicznej, których komory wypełniono wkładem izolującym z pianki poliuretanowej.

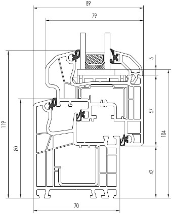
  • Pięciokomorowa budowa oraz głębokość zabudowy 70 mm zapewnia optymalną ochronę termiczną i akustyczną (1,2 W/m2K).
  • Konstrukcja z uszczelnieniem środkowym powoduje wyodrębnienie tzw. "suchej komory", w której pracuje okucie.
  • 13 mm przesunięcie osi rowka okuciowego od krawędzi ramy daje możliwość stosowania szerszych zaczepów, a tym samym zwiększa jego odporność na włamanie.
  • Zaokrąglone linie nadają oknom nowoczesny i harmonijny wygląd.
  • Niewidoczne uszczelki przyszybowe znacznie zwiększają estetykę okna.
  • 15 stopniowy skos krawędzi ramy i skrzydła zapewnia optymalny spływ wody.
Partnerzy