Oferta - Aluplast 8000

Systemy okienne aluplast to nowa generacja profili, które już dzisiaj spełniają wymagania stawiane oknom w przyszłości. Łączą w sobie najnowocześniejszą technikę z najwyższym komfortem mieszkania. Oryginalne i harmonijne wzornictwo, w połączeniu z dużym bogactwem rozwiązań systemowych, dają nieograniczone możliwości kreowania okien i podkreślenia przez to własnego stylu. Bogaty wybór różnego rodzaju listew przyszybowych stwarza dodatkowe możliwości stylizacji okien i dopasowanie do charakteru wnętrza.

Design Informacje

ALUPLAST Ideal 8000 classic

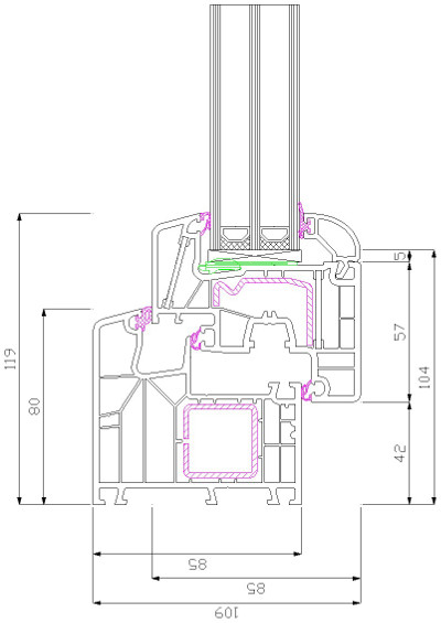
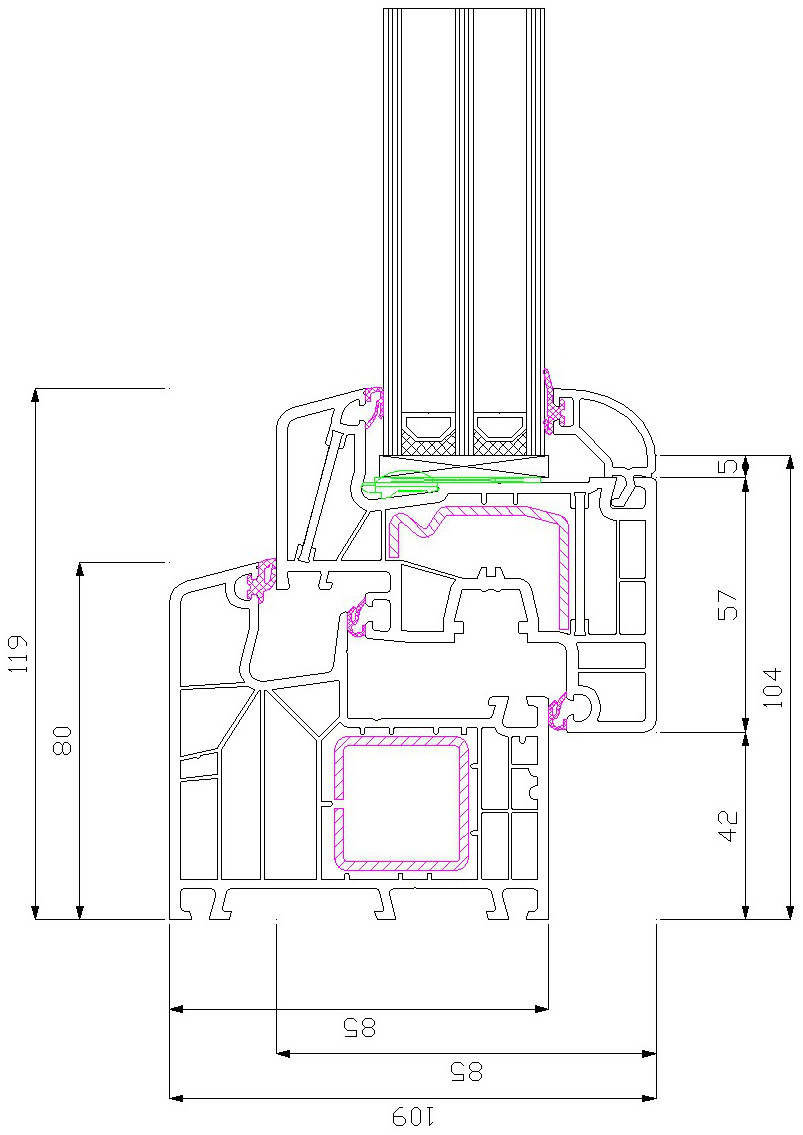
System Ideal 8000 to nowa propozycja firmy aluplast, w której duży nacisk położono na redukcję parametrów cieplnych i akustycznych. Możliwe było to dzięki zwiększeniu w serii Ideal 8000 głębokości zabudowy profili do 85 mm, zwiększeniu liczby komór w kształtownikach oraz trzem uszczelkom. W systemie tym, dzięki poszerzeniu wrębu szybowego, istnieje możliwość stosowania energooszczędnych pakietów szybowych o szerokości do 51 mm, co pozwala na tworzenie okien charakteryzujących się bardzo niską przenikalnością cieplną. Dzięki wydzieleniu przez trzecią uszczelkę tzw. suchej komory w której pracują okucia, zwiększa się żywotność i trwałość mechanizmów okuciowych. W ramach systemu kształtowników Ideal 8000 następuje połączenie dwóch różnych dróg do uzyskiwania ponadprzeciętnej oszczędności energii poprzez ograniczanie przenikalności cieplnej całej konstrukcji okiennej. Z jednej strony, kształtowniki zwiększają swoją głębokość i ilość wewnętrznych komór, a z drugiej możliwa jest częściowa rezygnacja ze stosowania stalowych wzmocnień w skrzydłach na rzecz technologii „bonding inside” polegającej na wklejaniu pakietu szyby zespolonej we wrąb skrzydła okiennego. Podobnie jak wszystkie serie profili aluplast system Ideal 8000 cechuje wielość wariantów konstrukcyjnych, wzajemna kompatybilność profili, a przede wszystkim swoboda w zakresie wyboru optymalnego rozwiązania. Konsekwencją poszukiwania oszczędności energii cieplnej poprzez zwiększanie głębokości kształtowników i liczby komór jest pojawienie się w ofercie nowego, sześciokomorowego wariantu Ideal 8000 o głębokości zabudowy 85 mm. Dodatkową zaletą jest możliwość zastosowania pakietu trzech szyb zespolonych wypełnionych argonem o szerokości do 51 mm, co gwarantuje najlepsze parametry cieplne okna przy relatywnie niskim koszcie zastosowanych rozwiązań.
  • Głębokość zabudowy 85 mm.
  • Profil 6 - komorowy.
  • Możliwość zastosowania pakietów szybowych o szerokości do 51 mm.
  • współczynnik izolacyjności termicznej profili Uf = 1,0 W/m²K.
  • System z uszczelnieniem środkowym wyposażony w trzy uszczelki.
  • Kilka wariantów skrzydeł: niezlicowane i półzlicowane o oryginalnym designie.
  • Większa stabilność okien dzięki usztywniającemu współdziałaniu szyby.
  • Lepsza izolacyjność cieplna w stosunku do tradycyjnych rozwiązań.
  • Lepsze zabezpieczenie przed włamaniem – brak możliwości wypchnięcia szyby ze skrzydła, dzięki obwodowej szczelinie z klejem.
  • Zmniejszenie ilości przypadków pękania szyb w wyniku błędnego zaszklenia.
  • Lepsza izolacyjność akustyczna poprzez bezpośrednie powiązanie skrzydła z szybą.
Partnerzy